place
Наши филиалы: Барановичи

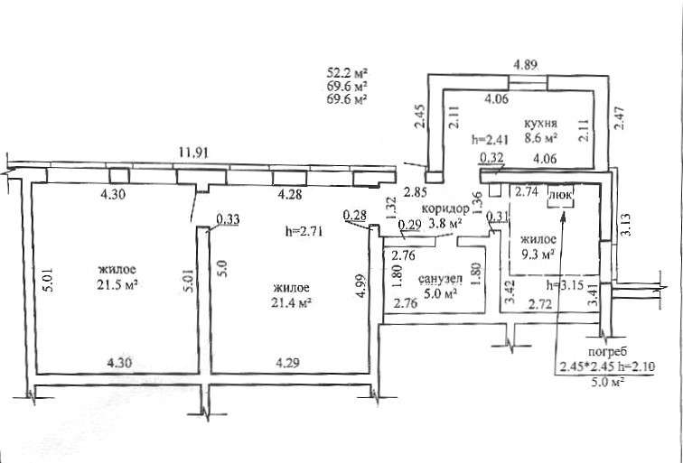
Продаётся часть дома, с ремонтом, в статусе 3-комнатной квартиры, с отдельным входом и заездом на территорию, гаражом по адресу: 1-й пер Водопроводный.

- Дом деревянный, обложен кирпичом. Крыша - шифер.

- Общая площадь - 69,6 м², жилая- 52,2 м², кухня-8,6 м².

- Высота потолков - 2,71 м.

- Заменена сантехника, электрика (установлен новый счётчик), также была произведена замена труб отопления.

- Стены в доме обшиты гипсокартоном и оклеены обоями.

- Окна-ПВХ.

- Потолки - сайдинг (кухня, коридор, с/у), натяжной (комнаты).

- Полы - стяжка + ламинат.

- Санузел - совмещённый (облицован плиткой).

- Коммуникации: вода, канализация и отопление - центральные, газ - баллон.

- Имеется подвал.

- Участок около 4 соток (статус аренды) по периметру огорожен забором.

- Гараж блочный, 1983 г. п. площадью - 24,7м²(размер 6,03*4,10), высота помещения - 2,25 м, со смотровой ямой, подвалом. Заведено электричество.

- На территории уложена тротуарная плитка под стоянку авто и дорожка к дому.

В шаговой доступности находится все необходимое для комфортного проживания: различные магазины, рынок, ж/д вокзал "Барановичи-Полесские", Автовокзал, д/сад, школа.

95 638.40 BYN 32 000.00$ 1 374.11 BYN/м2 459.77$/м2
Предложить свою цену
Заполните телефон!
Введите цену или отметьте галочкой "Консультация по кредиту"
Нажимая "Отправить" я даю согласие на обработку персональных данных
Область
Брестская область
Район области
Барановичский
Микрорайон
Яново
Участок, с
4
Площадь(О/Ж/К)
69.60/52.20/8.60
Количество уровней
1
Количество комнат
3
Крыша
Шифер
Отопление
Центральное
Водоснабжение
Центральный водопровод
Канализация
Центральная
Номер и дата договора
139/11 от 11-10-2025
Посмотреть на карте