place
Наши филиалы: Барановичи

Свободное назначение

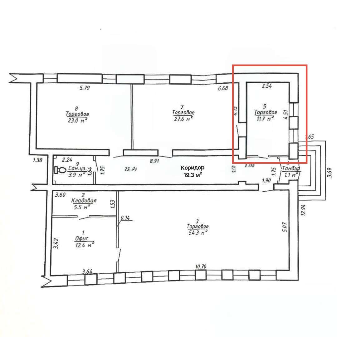
Аренда Барановичи, Комсомольская, 22

Сдается в аренду офисное помещение площадью 11.7 м², расположенное на 1-ом этаже административно-торгового здания по ул. Комсомольская, 22. Локация с высоким пешеходным трафиком. Оживленное место, в шаговой доступности остановка общественного транспорта.

- Офис с ремонтом.

- Высокие потолки.

- Cан. узел на этаже.

- 2 окна ПВХ.

- 2 радиатора отопления (своя котельная).

- Индивидуальный счетчик на электроснабжение.

- Бюджетные коммунальные платежи.

Для согласования времени просмотра, звоните!

370.00 BYN 123.80$ 31.62 BYN/м2 10.58$/м2
Предложить свою цену
Заполните телефон!
Введите цену или отметьте галочкой "Консультация по кредиту"
Нажимая "Отправить" я даю согласие на обработку персональных данных
Область
Брестская область
Район области
Барановичский
Площадь, м2
11.7
Кол-во помещений
1
Этаж
1/2
Номер и дата договора
20/2А от 02-04-2024
Посмотреть на карте