place
Наши филиалы: Барановичи

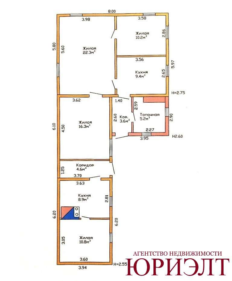
Продается жилой дом с тремя деревянными жилыми пристройками по адресу: ул. Фроленкова.

Общая площадь – 91,3 м², жилая – 59,6 м², кухня – 9,4 м².

Коммуникации:

* Водоснабжение – центральное;

* Отопление – газовое (установлен газовый котёл, газовая колонка на подогрев воды);

* Канализация – местная, 2 ямы (выкачивается один раз в 5-7 лет).

Дом в жилом состоянии:

* Заменена проводка на медную;

* Менялись канализационные трубы;

* Установлены пластиковые окна;

* Стены обшиты гипсокартоном.

Участок – 8 соток, выделен сервитут для заезда на участок через соседей. Имеются хоз. постройки: сарай, кирпичный гараж.

Готовы к обмену на 2-комнатную квартиру на 1-м этаже или другие этажи в доме с лифтом. Рассмотрим все предложения, звоните!

91 198.90 BYN 31 000.00$ 998.89 BYN/м2 339.54$/м2
Предложить свою цену
Заполните телефон!
Введите цену или отметьте галочкой "Консультация по кредиту"
Нажимая "Отправить" я даю согласие на обработку персональных данных
Область
Брестская область
Район области
Барановичский
Микрорайон
Яново
Участок, с
8
Площадь(О/Ж/К)
91.30/59.60/-
Количество уровней
1
Материалы дома
Дерево
Крыша
Шифер
Отопление
Газовое
Газоснабжение
Есть
Водоснабжение
Центральный водопровод
Канализация
Местная
Номер и дата договора
147/11 от 21-10-2025
Посмотреть на карте