place
Наши филиалы: Барановичи

Свободное назначение

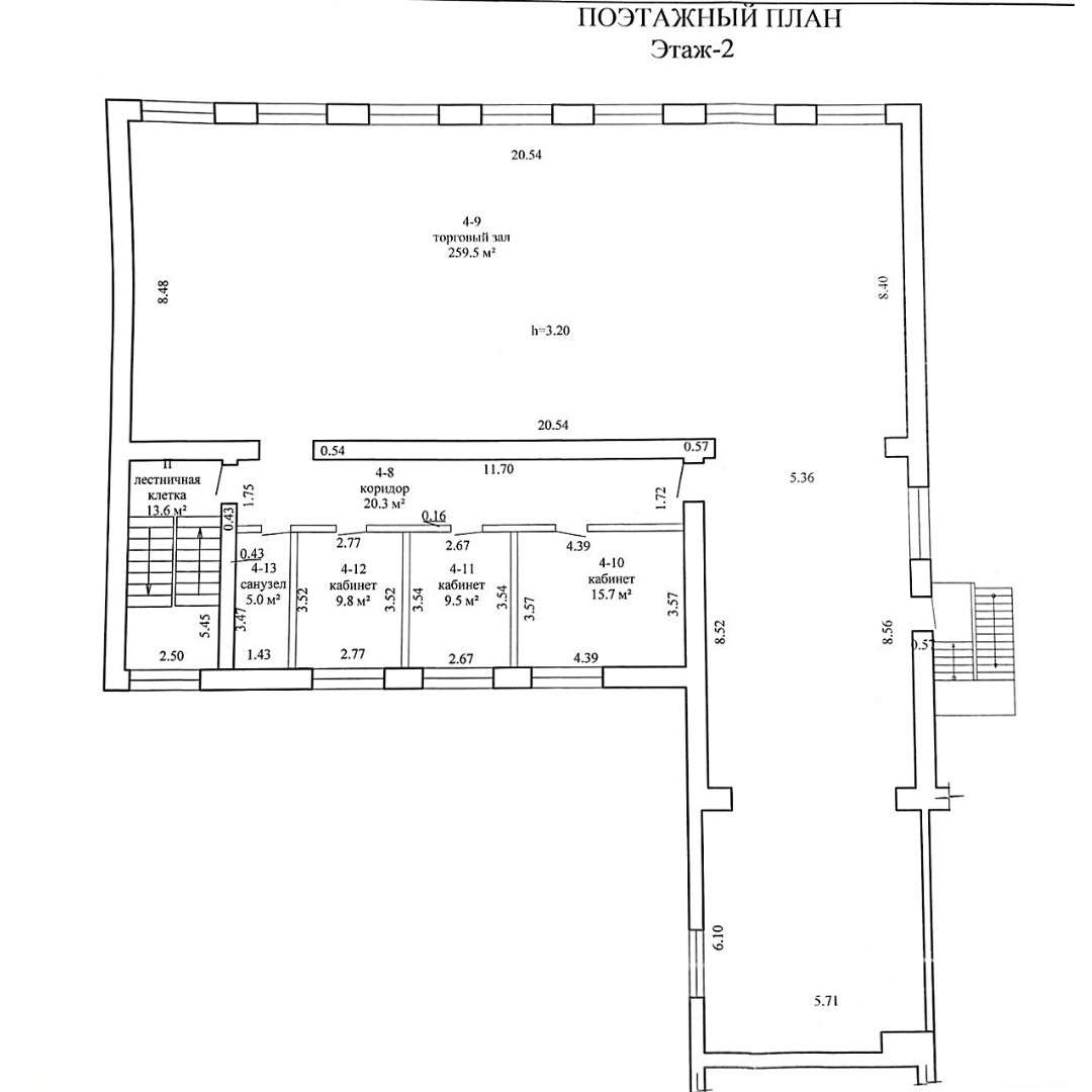
Аренда Барановичи, Промышленная, 7Б к.4

Сдается в аренду административно-торговое помещение на втором этаже с отдельным входом.

Ищите идеальное место для Вашего бизнеса? Мы предлагаем Вам светлое и просторное помещение с качественным ремонтом, готовое к незамедлительному использованию.

 

Уникальное помещение и свободно:

для аренды | для Ваших идей по заполнению пространства | для планировки.

 

Преимущества:

› Удобное расположение: отличная транспортная доступность и высокая проходимость.

› Современный ремонт: помещение готово к работе.

› Парковка: удобные парковочные места для Вас и Ваших клиентов.

› Гибкие условия аренды: Мы готовы обсуждать Ваши потребности такие как площадь аренды полностью | частично | аренда площади с установкой конструкций для изолирования.

 

Технические характеристики:

- S зала = 259,5 м² (дополнительно рассмотрим аренду отдельных кабинетов)

- отдельный вход

- хорошее естественное освещение (семь окон в зале)

 

Особенности помещения:

- Единая площадь (зал), позволяющая адаптировать пространство под Ваши потребности.

- Возможность разделения на несколько зон (офисы, кабинеты, зоны для встреч и т. д)

- Высокие потолки ( h= 3,2 м.)

- Есть возможность размещения Вашей рекламы на фасаде здания для привлечения клиентов и узнаваемости.

 

Достойное предложение для аренды помещения, которое станет отличной базой для Вашего бизнеса.

Варианты идей, которые могут успешно работать в данном помещении:

- Офисные пространства.

- Коворкинг: создание пространства для современной работы, где могут арендовать рабочие места или кабинеты.

- Студия для занятий: организовать занятия по йоге, фитнесу, танцам или другим видам активностей.

- Образовательный центр

- Кабинеты специалистов: помещение можно использовать для работы врачей | косметологов | психологов и других специалистов.

- Магазин: продажа одежды, товаров для дома и т. д

 

Готовность помещения = 100 %, от Вас только наполнение содержимым под свой вкус и идеи!

 

Развивайте свой бизнес в комфортном и удобном пространстве по адресу:

ул. Промышленная 7Б-4

 

Звоните прямо сейчас для организации просмотра!

2 699.39 BYN 894.31$ 10.40 BYN/м2 3.44$/м2
Предложить свою цену
Заполните телефон!
Введите цену или отметьте галочкой "Консультация по кредиту"
Нажимая "Отправить" я даю согласие на обработку персональных данных
Область
Брестская область
Район области
Барановичский
Микрорайон
Колпеница
Площадь, м2
259.5
Этаж
2/2
Удобства
Парковочное место
Номер и дата договора
4/9А от 20-01-2026
Посмотреть на карте